This property is being offered in partnership with Long and Foster Realtors of Blacksburg, VA, Dawn Myers-Underwood and Kerry Gillispie, realtors.
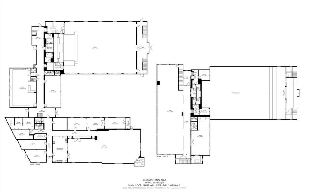
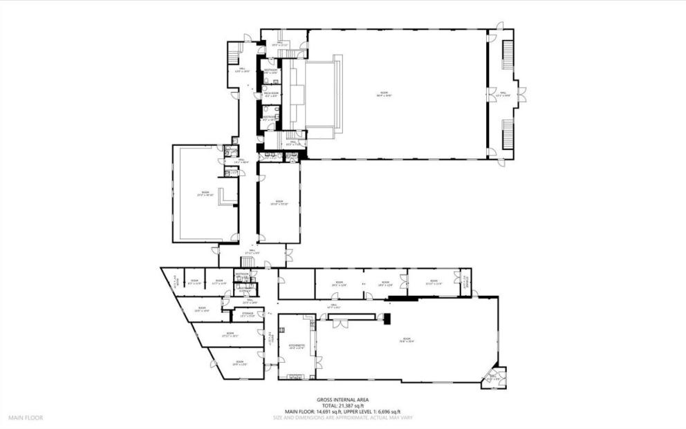
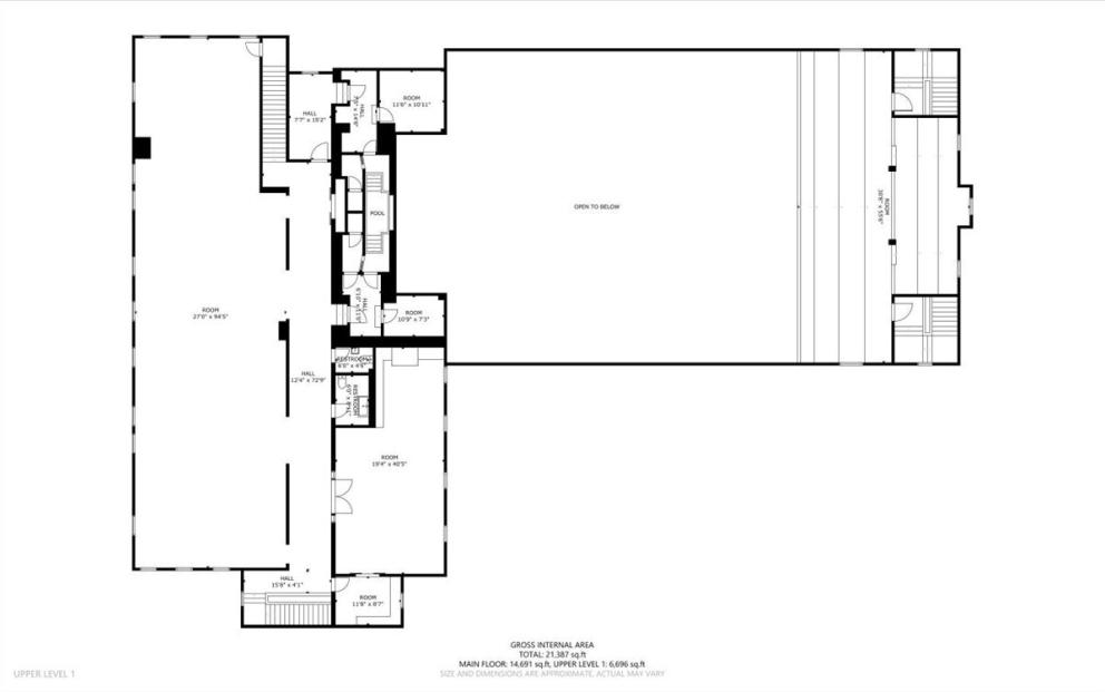
Your opportunity for consistent cashflow awaits. A true investment opportunity. Former church building in downtown Christiansburg. Zoned B2 /General Business with 248.16 feet frontage on West Main Street and 222.91 feet frontage on Hickok Street. Three buildings consisting of a coffee shop, restaurant, and multiple suites leased by commercial and office tenants to include shared tenant amenities. Other lease opportunities available to include event opportunities. Parking lot is paved and marked.
An Investment Opportunity Awaits!! Discover a commercial space that weaves together a tapestry of history and modern versatility at 100 W. Main St. in Christiansburg, V A. Are you ready to step into a space where history meets contemporary vibrancy? Explore the possibilities that 100 W. Main St. holds.

























































